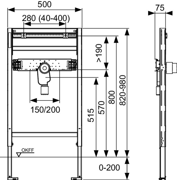
TECEprofil - stelaż montażowy pod umywalkę z syfonem podtynkowym, wysokość montażowa 820 - 980 mm
Stelaż montażowy pod umywalkę do mocowania na kształtownikach stalowych TECEprofil lub do montażu w ścianach z profili metalowych lub drewnianych oraz jako ścianka przednia lub moduł narożnikowy. Do montażu umywalek podbudowanych, zgodnie z DIN 18040 – 1 (budownictwo bez barier – część 1: budynki dostępne publicznie)
Kompletnie zmontowana jednostka, składająca się z:
Samonośnej ramy montażowej, malowanej proszkowo
Dwóch szpilek montażowych M 10, wskaźnika rozstawu z regulacją pionową i poziomą
Dźwiękoszczelnego trawersu montażowego do mocowania kolan naściennych w rozstawie 150 mm i 200 mm
Syfonu podtynkowego DN 50 z wyciąganym wkładem, średnica nominalna 30 (który jest jednocześnie uszczelką), wraz z zatyczką ochronną








