Kupuj, montuj i zgarniaj punkty! Sprawdź aktualne akcje w Programie PIK!
 

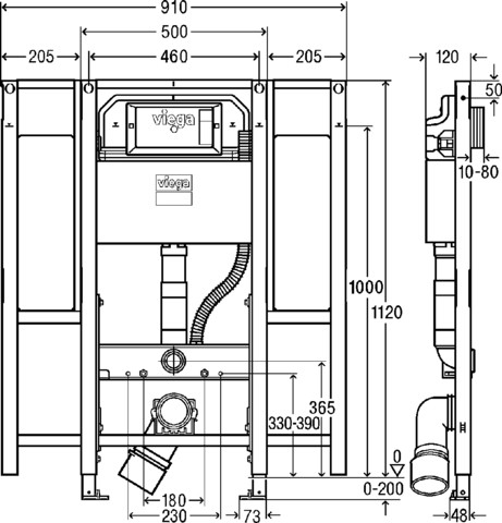
Stelaż podtynkowy do WC VIEGA 88749, 1120 x 910 x 120 mm, regulowana wysokość, ze spłuczką

Kod IK

67793074

Kod EAN

4015211793074

Kod producenta

793074

Marka

VIEGA

Model

88749

Cena katalogowa netto

3 695,13 zł / szt.

Cena katalogowa brutto

4 545,01 zł / szt.

Prevista Dry-stelaż WC, do uchwytów dla niepełnosprawnych, regulacja wysokości zawieszenia ceramiki sanitarnej, 1120 mm. Wyposażenie: Prevista Dry-zestaw mocujący nr wzoru 8570.36, z możliwością dodatkowego domówienia: Prevista Dry-zestaw do podparcia nr wzoru 8570.37, stal, PE, kompatybilne ze wszystkimi przyciskami uruchamiającymi do WC Prevista, kompatybilne z Prevista Dry Plus, z możliwością przestawnej wysokości ceramiki sanitarnej, 2-objętościowy układ spłukujący, dla niepełnosprawnych. Wyposażenie: Rama malowana proszkowo (40×40), spłuczka podtynkowa 3H, elementy mocujące do uchwytów dla niepełnosprawnych z lewej i prawej strony stelaża WC, dławik przepływu wody, rura osłonowa do przyłącza WC myjącego, komplet przyłączeniowy do WC, materiał do mocowania, hamulec do ustawienia wysokości zabudowy, przyłącze wody R½ od tyłu i od góry, łuk przyłączeniowy do WC DN90 (o regulowanej głębokości), złączka przejściowa mimośrodowa DN90/100 z PP. Dane techniczne: ustawienie fabryczne spłukiwanie oszczędne ok. 3 l, zakres ustawienia objętości oszczędnego spłukiwania ok. 2–4 l, ustawienie fabryczne spłukiwanie pełne ok. 6 l, zakres ustawienia objętości pełnego spłukiwania ok. 3,5–7,5 l, maks. obciążenie 400 kg, maks. długość miski 700 mm. Wskazówka: Przyciski uruchamiające i wyposażenie: grupa produktów przyciski uruchamiające do WC i pisuarów Prevista!, nr wzoru 8874.9, nr kat. 793 074, H zab.: 1120 B: 910 z regulacją wysokości: 330-390 mm,

Dane techniczne

Głębokość [mm]

120

Regulowana wysokość

Tak

Szerokość [mm]

910

Wysokość [mm]

1120

Dane logistyczne

Opakowanie zbiorcze 1

Jednostka zbiorcza opak.

paleta

Ilość

3

Masa brutto [kg]

109,18

Długość [m]

0,8

Szerokość [m]

1,2

Wysokość [m]

0,45