Grzejnik płytowy typ 20 KERMI V-HHV, z osłonami wym. 770 x 700 mm, kolor biały, moc 848 W
Konkretne i proste wzornictwo, płaskie wykonanie, duża moc i dowolność pod względem proporcji i wymiarów.
Wyjątkowa technika zaworowa Kermi dająca odczuwalną oszczędność energii. Estetyczny wygląd, skrócony czas montażu i prosta instalacja.
Dyskretne, estetyczne i funkcjonalne rozwiązanie koncepcji architektonicznej.
Pionowe, smukłe wykonanie – estetycznie wykończone za pomocą standardowo montowanej bocznej osłony lub idealne dostosowanie w wersji poziomej – z elegancką osłoną lub bez.
Dane techniczne
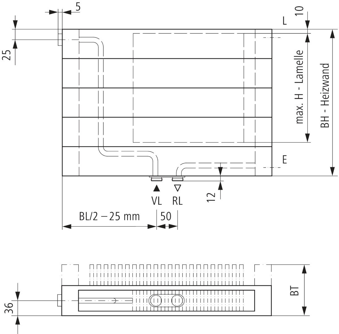
Długość [mm]
700
Głębokość [mm]
72
Kolor
Biały
Moc cieplna EN 442 20°C - 75/65 [W]
848
Rodzaj
20
Wysokość [mm]
770








