Grzejnik płytowy typ 10 KERMI V-HHV wym. 280 x 1500 mm, kolor biały, moc 483 W
Konkretne i proste wzornictwo, płaskie wykonanie, duża moc i dowolność pod względem proporcji i wymiarów.
Wyjątkowa technika zaworowa Kermi dająca odczuwalną oszczędność energii. Estetyczny wygląd, skrócony czas montażu i prosta instalacja.
Dyskretne, estetyczne i funkcjonalne rozwiązanie koncepcji architektonicznej.
Pionowe, smukłe wykonanie – estetycznie wykończone za pomocą standardowo montowanej bocznej osłony lub idealne dostosowanie w wersji poziomej – z elegancką osłoną lub bez.
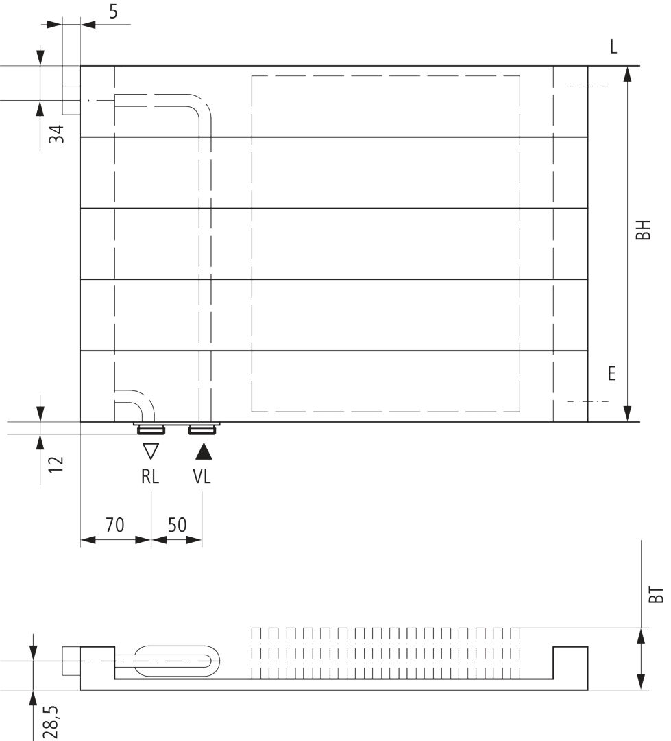
Dane techniczne
Długość [mm]
1500
Głębokość [mm]
43
Kolor
Biały
Moc cieplna EN 442 20°C - 75/65 [W]
483
Rodzaj
10
Wysokość [mm]
280








